凯发娱乐全球公开(中国)官网
HOTLINE
020-56254347HOTLINE
020-56254347发布时间:2025-11-13 22:53:49 点击量:
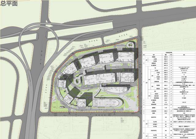
申请人义乌市交通旅游实业有限公司向本局提出申请,要求办理江东街道徐江片区A-01地块建设工程规划许可证手续。
申请人已委托设计单位按规划条件、相关规定、设计规范等编制规划方案,并经义乌市自然资源和规划局义乌经济技术开发区分局初步审查同意。根据《城乡规划法》、《行政许可法》及相关规定要求,现对该项目的规划方案予以公示。
公示期为2025年11月8日至2025年11月17日,公示地点为项目现场和义乌经济技术开发区管委会网站。
该项目位于义乌市江东街道,北邻环城南路,西邻佛堂大道,用地面积138629.83平方米,用地性质为工业用地,商业服务业用地。
地块总建筑面积488252.92㎡,其中地上建筑面积456613.28㎡,地下建筑面积31639.64㎡,容积率3.29,建筑基底面积57779.22㎡,建筑密度41.68%,绿地率20%,机动车停车位1676辆,非机动车停车位2982辆。
10月28日,义乌市交通旅游实业有限公司以底价35970万元摘得江东街道徐江片区A-01地块。
根据规划条件,商业建筑面积不大于3.5万平方米,工业建筑面积不少于41万平方米。商业及其配套用房建筑占地不超过地块用地面积的7.5%。
